当前位置:雨林木风下载站 > 电脑学习教程 > 详细页面

cad图纸如何看?

cad图纸如何看?

更新时间:2026-01-27 文章作者:未知 信息来源:网络 阅读次数:

本站电脑知识提供电脑入门知识,计算机基础知识,计算机网络应用基础知识,电脑配置知识,电脑故障排除和电脑常识大全,帮助您更好的学习电脑!不为别的,只因有共同的爱好,为软件互联网发展出一分力! 现在非常...
本站电脑知识提供电脑入门知识,计算机基础知识,计算机网络应用基础知识,电脑配置知识,电脑故障排除和电脑常识大全,帮助您更好的学习电脑!不为别的,只因有共同的爱好,为软件互联网发展出一分力!

 现在非常流行使用CAD制图,但是CAD图纸怎么才能看懂呢?

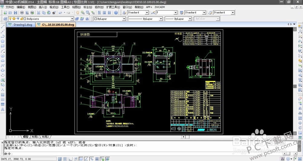
方法步骤:

1.CAD现在是最常用的制图工具了,但是对于新手来说,CAD是很复杂难懂的,其实看CAD图纸是有技巧的,接下来小编就为大家介绍一下。

cad图纸怎样看?

 

2.首先,拿到一幅CAD图纸之后,首先要看清楚图名,看看生活中有没有见过,然后看主结构,要大致了解外形是什么样的。

cad图纸怎样看?

 

3.然后需要看明细栏,不用说,明细栏是图纸中最重要的部分,能把明细栏摸清楚了,这张图纸就可以大致理解个七七八八了。

cad图纸怎样看?

 

4.然后需要了解拆分图,其实CAD就相当于一个零件,看完主结构,就需要了解零件的拆分图了,只要了解了内部结果,就基本能够看懂了。

cad图纸怎样看?

 

5.最后就是侧视俯视图了,看图纸的时候,我们需要结合多个视图一起看,这样就能够全方位了解图纸的结构,也就更容易理解了。

cad图纸怎样看?

 

以上就是小编为大家准备的cad图纸怎么看的教程,如果你拿到一张图纸之后一筹莫展,就可以用这几种办法来快速了解了,希望可以帮到大家。


学习教程快速掌握从入门到精通的电脑知识

温馨提示:喜欢本站的话,请收藏一下本站!

本类教程下载

系统下载排行